Ref # 2485463

The Perfect Home for Growing Families

Property Type
House
Bedrooms
4
Bathrooms
3.5
Garages
2
Floor Size
242m²
Land Size
474m²
Living Area
3
Rates & Taxes
±R4,646
Levy
±R1,950

Overview

This modern double-storey family home offers a perfect blend of comfort, functionality, and contemporary design, ideal for families seeking easy living in a secure estate.

With open-plan living areas flowing seamlessly to a covered patio and a spacious garden, this home is designed for both relaxed family living and effortless entertaining. The upstairs layout provides privacy and comfort, highlighted by a large shared balcony that enhances the indoor-outdoor lifestyle.

Property Features

Ground Floor – Practical & Open Living

  • Double garage with direct access into the foyer
  • Covered entrance leading into a spacious and welcoming foyer
  • Guest toilet conveniently located

Living Areas

  • Open-plan lounge and kitchen
  • Seamless flow to the covered patio
  • Ideal layout for both everyday living and entertaining

Kitchen

  • Modern kitchen with centre island & prep bowl
  • Breakfast nook design
  • Separate scullery
  • Access to kitchen yard

Additional Features

  • Staff quarters with en-suite bathroom
  • Private and practical layout for staff or additional use

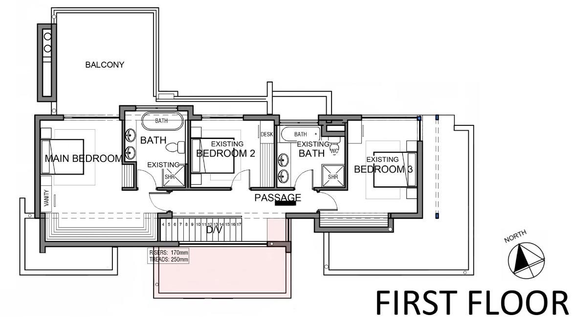
First Floor – Comfortable Family Living

Main Bedroom Retreat

  • Spacious main bedroom
  • Walk-in closet
  • Full en-suite bathroom
  • Access to a large shared balcony

Family Bedrooms

  • Bedrooms 2 & 3 sharing a full bathroom
  • Both bedrooms enjoy access to the expansive balcony
  • Ideal for relaxed outdoor living

Outdoor Living

  • Spacious garden
  • Ample room to add a pool or additional entertainment features
  • Covered patio with built-in braai
  • Designed for future flexibility

Additional Features

  • Modern finishes throughout
  • Excellent indoor-outdoor flow
  • Functional layout for family living
  • Move-in ready

Why This Home Stands Out

✔️ Expansive shared balcony enhancing upstairs living

✔️ Great potential to personalise outdoor space

✔️ Practical layout with staff accommodation

✔️ Ideal balance of comfort and modern design

✨ A well-designed modern home offering space, flexibility, and effortless family living.

📞 Contact me today to arrange your private viewing.

Elzerie van Jaarsveld photo
Elzerie van Jaarsveld
084 200 2277
On Show
Saturday, 04 Apr 2026
14:00 - 16:00
Sunday, 05 Apr 2026
14:00 - 16:00
Make an enquiry
Interested in this property? Please fill in your details below, and we will contact you as soon as possible.
By clicking on "submit" you agree to our privacy policy.